
ホンマ製作所の薪ストーブを自力で設置
薪ストーブを自力で設置しました。
きっかけ
2011年冬
寒いある日
妻が
「薪ストーブがあったらいいね」
「ん? 確かに家の周りに木はたくさん生えているし・・・」
ということで、薪ストーブを検討することにしました。
ある人の紹介で、薪ストーブを扱っている業者を訪ねました。
ご主人はとても話しやすい人で、実際に展示している薪ストーブを前に、丁寧に説明してくれました。
買うならここで買おうと決めました。
「価格はどれくらいですか?」
と聞くと、
「煙突が高いのです。安くても最低100万円かかります。」
「・・・・・」
100万円なら、普通の暖房費としては10年分くらいかな?
しかし火を見ながら生活するのもいいかもしれない。
周りに木はたくさんあるし。
自分でつくれるかな?
と、色々考えたどり着いた答えが、
日本の「ホンマ製作所」の薪ストーブを買って、自分でつくる
でした。
機種の選定
素材
薪ストーブの素材としては、鋳物製と鋼板製があります。
鋳物製は厚みがありシックなデザインが多いです。
一般的に重く、暖まるのに時間がかかるが、冷えるのも時間がかかるようです。
鋼板製は厚板を溶接して造られているようで、モダンなデザインが多いです。
鋳物製より軽めで、早く暖まるが、冷えるのも早いようです。
燃焼室の構造
燃焼室が密閉されていて、吸入される空気の量が調節できる物と、解放されている物があるそうです。
ホンマ製作所に訪ねると、密閉式の方がいいそうです。
後でわかりましたが、密閉式だと火力の調節が簡単です。
薪を投入しすぎたときなど、思いもよらず火の勢いが強くなり慌てることがありますが、ダイヤルにより空気の量を絞ることにより、簡単に火の勢いを調節することができます。
ということで、ストーブの機種は鋳物製で密閉性の高い
AR-950
に決定です。
88,000円

ただし、質量が134kgなのが気がかりですが。
煙突
煙突には、シングル煙突と2重煙突(断熱)の2種類があります。
シングル煙突は、文字通り単板のステンレスでできたパイプです。
2重煙突は、ステンレスのパイプが2重になっており、そのすきまを断熱材で充填してあります。
価格はもちろん2重煙突の方が高いです。
どちらでも良さそうなのですが、実は2重煙突でなければならないのです。
煙突は内部を通過する高温の排煙により上昇気流が生じ、上部の煙突から排出されます。
実際、着火直後は煙突内の温度が低いので、ストーブ内に供給される空気の量が少なく、なかなか勢いよく燃えません。
しかし、いったん煙突内の温度が上がると、勢いよくストーブ内に空気が供給され、薪も勢いよく燃えだします。
この時シングル煙突だと外気によって煙突内がなかなか暖まらないので、上昇気流が発生しにくいのです。
また、2重煙突だと内部の温度が上がっても、外側はあまり温度が上がらないので火災の危険も少ないということです。
ということで。
ストーブから直接上方に伸びる煙突だけ長さの調節ができるシングル煙突(スライド煙突)で、その他はすべて2重煙突とすることにしました。
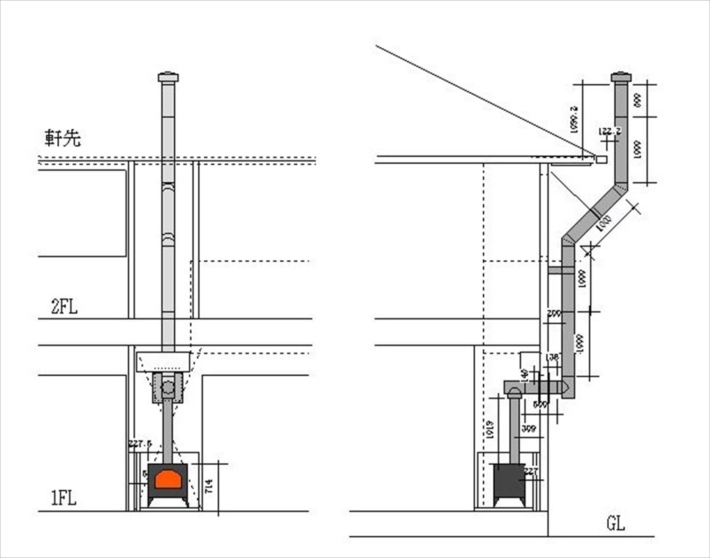
設計
薪ストーブは本当は部屋の中央に置いて、煙突を真上に出すのがベストなのですが、既に建築済の我が家には無理。
そこで壁際に設置し、壁に穴を開けて煙突を外に出し、そこから2階屋根上に排煙することにしました。

壁の穴あけとメガネ板
壁を煙突が貫通する部分は、断熱に気をつけなければなりません。
そのため、メガネ板という物が市販されていますが、どれも我が家には取付が不可能のようなので、独自に設計することにしました。
我が家は軽量鉄骨造なので、内壁は石膏ボード、外壁はサイディングでできています。
そこで、次のようなステンレスの板を特注し2枚購入しました。

注文した店は、「きりいた.com」です。
とても丁寧に対応してくださいました。
それを内壁と外壁にそれぞれ取り付け、その2枚のステンレス板に煙突を固定することにしました。
詳細は、後述の取り付けの所をご覧ください。
製作
内壁の穴あけ
穴開けをする部分は、ブレース(筋交いの鉄の棒)が入っているはずですが、位置的にたぶん大丈夫なはず。
念のため小さい穴を開け、壁の内部を確認しながら穴を広げていきます。

すると、ブレースがありましたが、煙突の貫通には何とか支障のない位置でした。

まず、メガネ板用のステンレス板を固定するために、内部に木で内枠を作ります。


念のため枠の板の表面をステンレス板で覆います。
枠板にステンレス板をビス留めします。

炉台の設置
炉台は普通耐火性のあるレンガ等で造るそうですが、それでは重いのと面倒くさいので、他の方法はないかと考えました。
そこで、いつもお世話になっている建材屋に行って、
「炉台に使う材料を探しているんですけど、比較的軽くて耐熱性のある材料はありませんか?」
と聞くと、
「外壁用のALCなら少し残っているけど・・」
見せてもらったら、長さ180cm・幅60cm・厚さ5cmの白い発泡コンクリートでした。
建築物の外壁に使う資材だそうで、耐熱性も十分。
そんなに重くもありません。
すぐにこれに決定。
2枚購入しました。
残り物なので、確か1枚2,000円くらいだったと思います。
ALCを必要な長さに丸のこで切断します。
床面は傷がつかないよう、ビニールの床材を敷きます。

内壁にALCを取り付けるための木枠をビスで取り付けます。
これは断熱材を入れるスペーサーともなります。

ALCを木枠に取り付けます。
木枠の間にグラスウールを詰めます。

木枠にALCをビス留めします。

床にALCを敷きます。

これで炉台のできあがり。
このALCの上に4本脚の134kgの薪ストーブが乗っかるので、加重が集中しないよう、後に厚さ1mmのステンレス板を敷きました。
また、ストーブからの放射熱を反射させるために、側面のALCにもステンレス板を側面から少し浮かせて取り付けています。
ステンレス板は、もちろん特注です。
岩崎商店というネットショップで購入しました。
こういう買い物は何社か見積もりをお願いして、送料を含めて一番安いショップを利用しています。
外壁の穴あけ
内側の穴と、外側穴の位置が一致するよう中心の位置を決め、穴の位置に印を付けます。
ジグソーで穴を開けます。

外側のステンレス板は、ボルト・ナットで外壁に取り付けます。
壁抜きの煙突の取り付け
まず外側のステンレス板に煙突を取り付けます。金物屋で見つけたL字金物を利用し、二つ割という部材で横方向の煙突を固定します。

内部にグラスウールを詰め込みます。

内側のステンレス板に別のL字金物を利用し、煙突を固定します。


ほとんどこの部分で煙突の全加重を支えることになるので、しっかり取り付けます。
取り付け後、煙突にぶら下がってもびくともしないことを確認。
これなら大丈夫でしょう。
壁と煙突の隙間は、耐熱シリコンシーラントで埋めておきます。
煙突の取り付け
後は煙突を上部に伸ばしていくだけ。

この部分は、ホンマの壁面取付金具を使用しました。
ただ外壁がサイディングなので、強度はありません。
外壁と煙突の間隔を一定に保つ程度の働きしかありません。

その上は、パーゴラの上にコンパネを敷き、その上に脚立を立てて上に伸ばしていきます。

斜めの部分は、ステンレスワイヤーで吊しました。

軒先の部分は、自在煙突支えで支えました。

ただこれが失敗。
強風が吹いたときに、煙突の上部が傾いてしまうのです。
対策は後日アップします。
最上部は、屋根に上がって取り付けました。

怖かった!
薪ストーブ本体の設置
さていよいよ薪ストーブ本体を設置します。
ずっと玄関先に置いていた134kgの薪ストーブを搬入します。
4本の脚は後で取り付けるようになっていたので、とりあえず脚なしの本体を搬入します。
家族4人で何とか炉台近くまで運び込みました。
そして本体を横に倒したまま、脚を1本ずつ取り付けていきます。

最後の力を振り絞って、本体を炉台に乗せます。

スライド煙突を取り付け、本体の位置を微調整しながら、何とか煙突と結合することができました。

こうして薪ストーブが完成しました。
トータル2ヶ月半程かかりました。
煙突のすぐ上にはエアコンがあるのですが、直下の煙突は2重煙突なので、熱の影響はないようです。
また、実際に薪ストーブを添加しているときは、エアコンを下向きの送風にしてやれば、ストーブの熱が効率よく部屋に伝わっていきます。
完成したらすぐに火を付けたくなるのが人情。
早速火を入れました。

ウーンいい感じ。
苦労した甲斐があった。
ちなみにホンマ製作所によると、一度に温度を上げすぎずに、何度かに分けて徐々に温度を上げないとストーブが破損するおそれがあるそうなので、この日はそこそこで火を落としました。
後は薪置き場と薪割を何とかしなければ。






















ディスカッション
コメント一覧
こんにちは、AR-950 出產國所ですか?所から入手出来ますか?
ホンマ製作所のホームページのオンラインショップで購入できますよ。